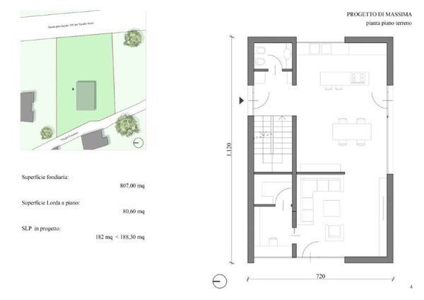
Terreno in Vendita a Quarona - Frazione Doccio

IN VENDITA
70.000,00 €

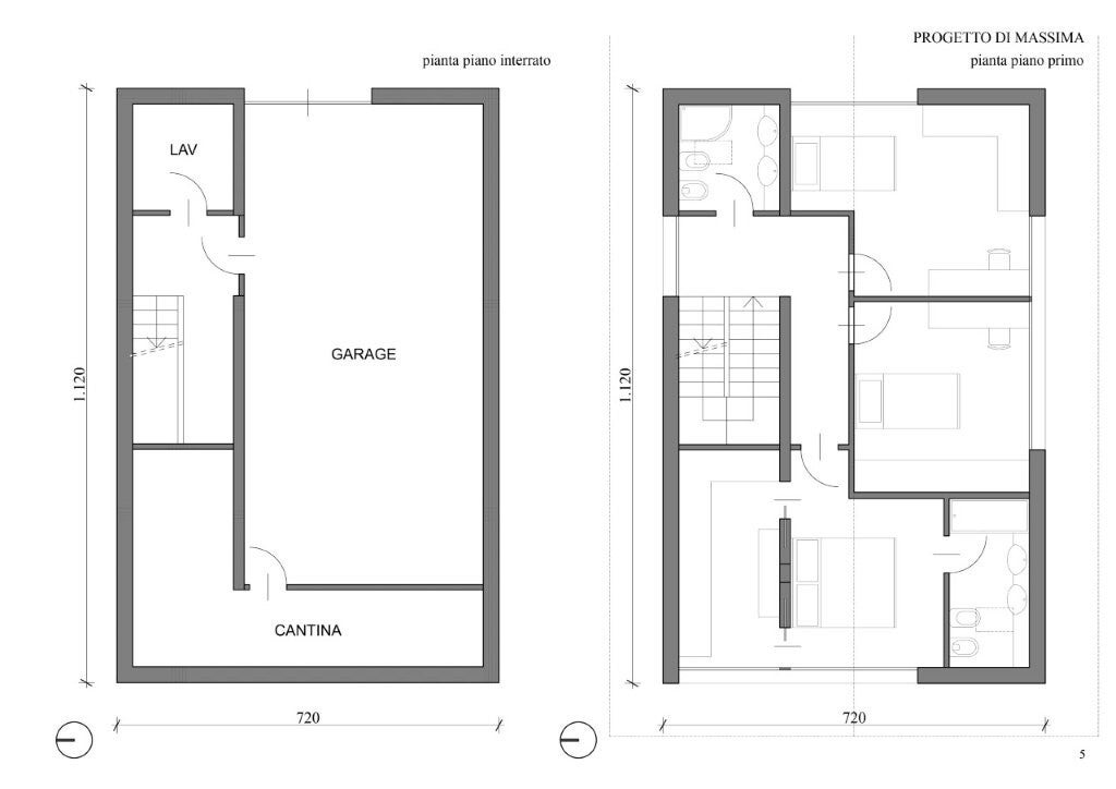
Scopri il tuo angolo di paradiso nella tranquilla frazione di Doccio, nel comune di Quarona. Questo terreno edificabile di 807 mq è l'opportunità perfetta per chi sogna di costruire una villetta immersa nella natura, lontano dal caos cittadino ma a pochi passi dai servizi essenziali. Con una superficie fondiaria di 241 mq, hai la possibilità di realizzare un'abitazione unifamiliare su tre piani, comprendente un piano interrato e due piani fuori terra.

L'accesso diretto dalla strada rende il terreno facilmente raggiungibile, mentre la posizione strategica offre un equilibrio ideale tra tranquillità e comodità. Immagina di progettare la tua casa ideale in un contesto sereno, dove la vita quotidiana può scorrere senza stress. Non perdere l'occasione di investire in questo spazio unico, dove ogni giorno può essere una nuova avventura. Contattaci per maggiori informazioni e per organizzare una visita!